相模原市南区上鶴間4丁目12期 新築戸建 全1棟 神奈川県相模原市南区上鶴間4丁目|4,999万円の新築一戸建て|分譲住宅や新築物件|ME不動産神奈川

定休日:水曜日 営業時間 9:00〜18:30

046-294-0866

会員登録
TOPページ >
物件検索 >
新築一戸建て
>
相模原市南区
>
小田急江ノ島線
>
相模原市南区上鶴間4丁目12期 新築戸建 全1棟

新築一戸建て

相模原市南区上鶴間4丁目12期 新築戸建 全1棟NEW
お気に入り
価格 4,999万円 ローンシミュレーション
所在地 神奈川県相模原市南区上鶴間4丁目
この地域周辺の物件を見る
土地面積 84.07m² (25.43坪) 建物面積 82.39u
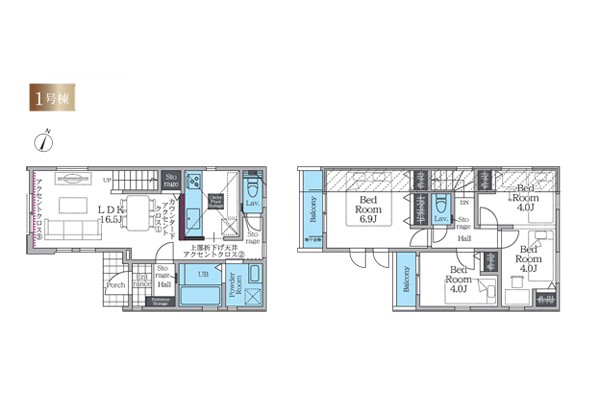
築年月 2026年6月築 間取り 3LDK (-)
交通
小田急江ノ島線 東林間 徒歩10分
東急田園都市線 中央林間 徒歩14分
ここがおすすめ

-


  •  間取り
  •  区画図
  • 周辺環境 駅 800m 小田急江ノ島線「東林間」駅
  • 周辺環境 小学校 400m 相模原市立上鶴間小学校
  • 周辺環境 中学校 190m 相模原市立上鶴間中学校
  • 周辺環境 幼稚園・保育園 550m 相模林間幼稚園
  • 周辺環境 病院 1100m 社会医療法人三栄会 中央林間病院
  • 周辺環境 スーパー 600m スーパー三和 東林間西口店
お問い合わせ、資料請求、見学のお申し込みはこちらから

電話をかける(携帯・PHS可)
046-294-0866
「ホームページを見た」とお伝え下さい。

お問い合わせ番号をお伝えください
RHS-980949160

内見予約
お問合せ

セールスポイント

特徴
  • フローリング
  • システムキッチン
  • カウンターキッチン
  • シャンプードレッサー
  • バス・トイレ別
  • シャワートイレ
  • 室内洗濯機置場
  • 浴室乾燥機
  • 床下収納
  • バルコニー
  • TVドアホン
  • 都市ガス
  • カースペース2台以上
  • 新着物件
セールスコメント
 


物件概要

採光面 - 構造/階数 木造/地上2階建
建ぺい率 50(%) 容積率 100(%)
駐車場 現況/引渡し -/2026年6月下旬
土地権利 所有権 私道負担面積 -

接道状況 接道: 南西 公道 道路幅: 7.6m 用途地域
第一種低層住居専用地域
セットバック なし 法令上の制限 準防火地域 法53条区域 下水道処理区域 宅地造成等工事規制区域 日陰規制3h-2h1.5m 高さ10m 越境の覚書有 2台駐車可能※車種による
地目 宅地 地勢 0
建築確認番号 第25UDI1W建13640号 都市計画 市街化区域
取引態様 仲介
情報更新日 2026年04月18日 次回更新日 2026年05月02日
※各種情報と差異がある場合は現況優先となります

学区情報

小学校区 相模原市立上鶴間小学校
(神奈川県相模原市南区)
この学区の他の物件を見る
中学校区 上鶴間中学校
(神奈川県相模原市南区)
この学区の他の物件を見る
※物件情報の学区情報について
当サイト物件情報に記載されております通学区域(学区)情報は、国土数値情報ダウンロードサービスが提供する小学校区データ【2016年度】及び中学校区データ【2016年度】を元に加工したものですので、記載情報が現在の学区域と異なる場合がございます。
国土数値情報ダウンロードサービスのWEBサイト上で記述通り、データは必ずしも正確とは言えません。また、通学区域(学区)は毎年見直しの対象となりますので、そちらを踏まえ学区情報は参考としてご活用下さい。
お問い合わせ、資料請求、見学のお申し込みはこちらから

電話をかける(携帯・PHS可)
046-294-0866
「ホームページを見た」とお伝え下さい。

お問い合わせ番号をお伝えください
RHS-980949160

内見予約
お問合せ

この物件でローンシミュレーションする

価格 万円
年利率
ボーナス払い 返済年数
頭金 直接入力する 万円

毎月のご返済額

ボーナス(×年2回)

物件価格

4,999万円
※返済金額はあくまでも目安です。

電話をかける(携帯・PHS可)
046-294-0866
「ホームページを見た」とお伝え下さい。

お問い合わせ番号をお伝えください
RHS-980949160

内見予約
お問合せ

お問い合わせ

お問い合わせ内容
お問合せ内容必須
【備考欄】
詳細な見学ご希望時間、ご質問、ご希望条件などがございましたらお聞かせ下さい。
(2000文字以内)
お客様情報
お名前必須
連絡先必須 メールアドレス

※ご記入いただいたメールアドレス宛てに、お問合せ内容の確認メールをお送りいたします。
※Yahoo!メールなどのフリーメールをご利用の場合、迷惑メールフォルダに入る場合があります。
 迷惑メールのフォルダ・設定等をご確認下さい。
電話番号
FAX(任意)
※ご入力いただいたお客さまの個人情報は、「個人情報の取扱いについて」に基づき適正に取り扱います。必ずお読みになり、同意の上お問い合わせください。

お気軽にお問い合わせください

046-294-0866
物件番号 RHS-980949160
※「ホームページを見た」
とお伝え下さい。

お問い合わせ

人生最大のお買いものである住宅購入には、様々なお悩みや不安がつきものです
どんな些細なことでも構いませんので、まずはME不動産神奈川にお気軽にご相談ください。

© ME不動産神奈川 All rights reserved.