鎌倉市浄明寺4丁目 新築戸建 全2棟 神奈川県鎌倉市浄明寺4丁目|6,080万円の新築一戸建て|分譲住宅や新築物件|ME不動産神奈川

定休日:水曜日 営業時間 9:00〜18:30

046-294-0866

会員登録
TOPページ >
物件検索 >
新築一戸建て
>
鎌倉市
>
JR横須賀線
>
鎌倉市浄明寺4丁目 新築戸建 全2棟

新築一戸建て

鎌倉市浄明寺4丁目 新築戸建 全2棟
お気に入り
価格 6,080万円値下がり ローンシミュレーション
所在地 神奈川県鎌倉市浄明寺4丁目
この地域周辺の物件を見る
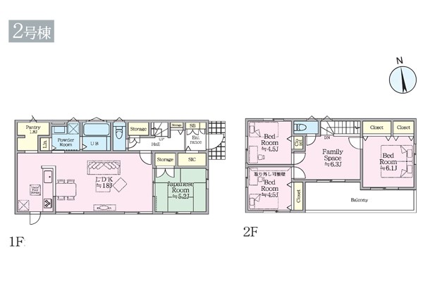
土地面積 260.18m² (78.7坪) 建物面積 107.74u
築年月 2026年4月築 間取り 4LDK (-)
交通
JR横須賀線 鎌倉 青砥橋 バス9分 停歩7分
JR横須賀線 逗子 ハイランド坂上 バス17分 停歩19分
ここがおすすめ

-


  • 現地外観写真 2号棟  ■暮らしを豊かにする充実した仕様設備で快適に
  •  2号棟
  • 現地外観写真 2号棟  ■新しい暮らしが始まる場所で、家族の絆を深める
  • 現地外観写真 2号棟  ■家族みんなが笑顔で過ごせる、安心感のある住まい
  • 現地外観写真 2号棟  ■まずは一度ご覧ください
  • その他 2号棟  ■庭付き住宅は多様な使用用途で活用できます
  • その他 2号棟  ■ガーデニングや洗車などの際に大活躍な屋外立水栓
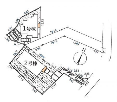
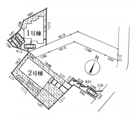
  •  区画図
  • トイレ 2号棟  ■毎日使う場所だからこそ、清潔感溢れる空間
  • 洗面台・洗面所 2号棟  ■朝の準備がスムーズにできる広さです
  • 浴室 2号棟  ■家族みんなが気持ちよく使える設計です
  • キッチン 2号棟  ■シンプルで機能的、毎日使いやすいキッチン
  • キッチン 2号棟  ■キレイに片付く、使いやすいキッチン
  • キッチン 2号棟  ■家族の絆を深める、温もりのあるキッチン
  • リビング 2号棟  ■光と風を感じる、リラックスできる空間
  • その他内観 2号棟  ■ふとした瞬間に幸せを感じる、心地よい場所
  • リビング 2号棟  ■シンプルだけど贅沢、大切な人と過ごす心がほどける空間
  • その他内観 2号棟  ■落ち着いた色合いのお部屋で穏やかな時間を楽しめます
  • その他内観 2号棟  ■優雅で穏やかな時間が流れる空間
  • 子供部屋 2号棟  ■仕事や勉強のスペースに使うことで、集中しやすく静かな環境が整います
  • 寝室 2号棟  ■快適な環境で、日常の疲れを癒せる空間
  • その他内観 2号棟  ■機能的で使いやすいお部屋で毎日を快適に
  • バルコニー 2号棟  ■ 季節の移ろいを感じられる開放的な空間です
  • その他内観 2号棟  ■落ち着いた雰囲気のお部屋で心が安らぐ空間
  • その他内観 2号棟  ■シンプルで使いやすい空間がスッキリ感じられます
  • その他内観 2号棟  ■清潔感あふれるお部屋で毎日を快適に過ごせます
  • その他内観 2号棟  ■落ち着いた色合いのお部屋で穏やかな時間を楽しめます
  • その他内観 設備■温水洗浄で快適、清潔感が保たれるシャワートイレ
  • その他内観 設備■冬でも温かく、快適乾燥機能で湿気対策もバッチリ
  • その他内観 設備■清潔でおいしい水を手軽に供給してくれます
お問い合わせ、資料請求、見学のお申し込みはこちらから

電話をかける(携帯・PHS可)
046-294-0866
「ホームページを見た」とお伝え下さい。

お問い合わせ番号をお伝えください
RHS-980947121

内見予約
お問合せ

セールスポイント

特徴
  • フローリング
  • システムキッチン
  • カウンターキッチン
  • 追い焚き
  • バス・トイレ別
  • シャワートイレ
  • 室内洗濯機置場
  • 浴室乾燥機
  • バルコニー
  • TVドアホン
  • 都市ガス
  • プライスダウン
セールスコメント
 


物件概要

採光面 - 構造/階数 木造/地上2階建
建ぺい率 40(%) 容積率 80(%)
駐車場 現況/引渡し 空家/即時
土地権利 所有権 私道負担面積 -

接道状況 接道: 東 公道 道路幅: 3.8m 用途地域
第一種低層住居専用地域
セットバック なし 法令上の制限 宅地造成及び特定盛土等規制法 風致地区 法22条区域 鎌倉市まちづくり条例 土砂災害警戒区域 宅地造成工事規制区域 埋蔵文化財保護法 隣地所有者と私道について覚書
地目 宅地 地勢
建築確認番号 第24KAK建確04413号 都市計画 市街化区域
取引態様 仲介
情報更新日 2026年05月24日 次回更新日 2026年06月07日
※各種情報と差異がある場合は現況優先となります

学区情報

小学校区
()
中学校区
()
※物件情報の学区情報について
当サイト物件情報に記載されております通学区域(学区)情報は、国土数値情報ダウンロードサービスが提供する小学校区データ【2016年度】及び中学校区データ【2016年度】を元に加工したものですので、記載情報が現在の学区域と異なる場合がございます。
国土数値情報ダウンロードサービスのWEBサイト上で記述通り、データは必ずしも正確とは言えません。また、通学区域(学区)は毎年見直しの対象となりますので、そちらを踏まえ学区情報は参考としてご活用下さい。
お問い合わせ、資料請求、見学のお申し込みはこちらから

電話をかける(携帯・PHS可)
046-294-0866
「ホームページを見た」とお伝え下さい。

お問い合わせ番号をお伝えください
RHS-980947121

内見予約
お問合せ

この物件でローンシミュレーションする

価格 万円
年利率
ボーナス払い 返済年数
頭金 直接入力する 万円

毎月のご返済額

ボーナス(×年2回)

物件価格

6,080万円
※返済金額はあくまでも目安です。

こちらの物件は複数区画の分譲地・他にも販売中のマンションがあります。

鎌倉市浄明寺4丁目
6080万円〜6180万円

電話をかける(携帯・PHS可)
046-294-0866
「ホームページを見た」とお伝え下さい。

お問い合わせ番号をお伝えください
RHS-980947121

内見予約
お問合せ

お問い合わせ

お問い合わせ内容
お問合せ内容必須
【備考欄】
詳細な見学ご希望時間、ご質問、ご希望条件などがございましたらお聞かせ下さい。
(2000文字以内)
お客様情報
お名前必須
連絡先必須 メールアドレス

※ご記入いただいたメールアドレス宛てに、お問合せ内容の確認メールをお送りいたします。
※Yahoo!メールなどのフリーメールをご利用の場合、迷惑メールフォルダに入る場合があります。
 迷惑メールのフォルダ・設定等をご確認下さい。
電話番号
FAX(任意)
※ご入力いただいたお客さまの個人情報は、「個人情報の取扱いについて」に基づき適正に取り扱います。必ずお読みになり、同意の上お問い合わせください。

お気軽にお問い合わせください

046-294-0866
物件番号 RHS-980947121
※「ホームページを見た」
とお伝え下さい。

お問い合わせ

人生最大のお買いものである住宅購入には、様々なお悩みや不安がつきものです
どんな些細なことでも構いませんので、まずはME不動産神奈川にお気軽にご相談ください。

© ME不動産神奈川 All rights reserved.