川崎市川崎区田町2丁目 新築戸建 全1棟 神奈川県川崎市川崎区田町2丁目|5,230万円の新築一戸建て|分譲住宅や新築物件|ME不動産神奈川

定休日:水曜日 営業時間 9:00〜18:30

046-294-0866

会員登録
TOPページ >
物件検索 >
新築一戸建て
>
川崎市川崎区
>
京急大師線
>
川崎市川崎区田町2丁目 新築戸建 全1棟

新築一戸建て

川崎市川崎区田町2丁目 新築戸建 全1棟
お気に入り
価格 5,230万円 ローンシミュレーション
所在地 神奈川県川崎市川崎区田町2丁目
この地域周辺の物件を見る
土地面積 58m² (17.55坪) 建物面積 105.97u
築年月 2026年6月築 間取り 4LDK (-)
交通
京急大師線 小島新田 徒歩4分
ここがおすすめ

-


  • 現地外観写真 外観■暮らしを彩る充実した設備仕様が備わった住まい
  •  間取り
  • 現地外観写真 外観■家族みんなが笑顔で過ごせる、安心感のある住まい
  • 現地外観写真 外観■新しい時代の息吹を感じる、心地よい環境
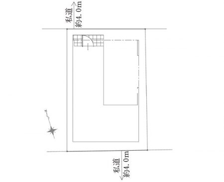
  •  区画図
  • 周辺環境 駅 320m 京急大師線小島新田「小島新田」駅
  • 周辺環境 小学校 500m 川崎市立殿町小学校
  • 周辺環境 中学校 1000m 川崎市立大師中学校
  • 周辺環境 幼稚園・保育園 400m 江川幼稚園
  • 周辺環境 病院 3200m 総合川崎臨港病院
  • 周辺環境 スーパー 700m マルエツ出来野店
お問い合わせ、資料請求、見学のお申し込みはこちらから

電話をかける(携帯・PHS可)
046-294-0866
「ホームページを見た」とお伝え下さい。

お問い合わせ番号をお伝えください
RHS-980945780

内見予約
お問合せ

セールスポイント

特徴
  • フローリング
  • 床暖房
  • システムキッチン
  • カウンターキッチン
  • バス・トイレ別
  • 室内洗濯機置場
  • バルコニー
  • 都市ガス
セールスコメント
 


物件概要

採光面 - 構造/階数 木造/地上3階建
建ぺい率 60(%) 容積率 200(%)
駐車場 現況/引渡し -/2026年6月下旬
土地権利 所有権 私道負担面積 あり
15.41m²
接道状況 接道: 北東 私道 道路幅: 4m
接道: 南西 私道 道路幅: 4m
用途地域
準工業地域
セットバック なし 法令上の制限 準防火地域 第3種高度地区 景観地区 道路斜線制限 隣地斜線制限 日陰規制 大師臨港地帯土地区画整理事業 第W工区 川崎市緑の基本計画 隣地(東側西側)との境に共有ブロック有
地目 宅地 地勢 平坦
建築確認番号 第25UDIK建101641号 都市計画 市街化区域
取引態様 仲介
情報更新日 2026年04月23日 次回更新日 2026年05月07日
※各種情報と差異がある場合は現況優先となります

学区情報

小学校区 川崎市立殿町小学校
(神奈川県川崎市川崎区)
この学区の他の物件を見る
中学校区 大師中学校
(神奈川県川崎市川崎区)
この学区の他の物件を見る
※物件情報の学区情報について
当サイト物件情報に記載されております通学区域(学区)情報は、国土数値情報ダウンロードサービスが提供する小学校区データ【2016年度】及び中学校区データ【2016年度】を元に加工したものですので、記載情報が現在の学区域と異なる場合がございます。
国土数値情報ダウンロードサービスのWEBサイト上で記述通り、データは必ずしも正確とは言えません。また、通学区域(学区)は毎年見直しの対象となりますので、そちらを踏まえ学区情報は参考としてご活用下さい。
お問い合わせ、資料請求、見学のお申し込みはこちらから

電話をかける(携帯・PHS可)
046-294-0866
「ホームページを見た」とお伝え下さい。

お問い合わせ番号をお伝えください
RHS-980945780

内見予約
お問合せ

この物件でローンシミュレーションする

価格 万円
年利率
ボーナス払い 返済年数
頭金 直接入力する 万円

毎月のご返済額

ボーナス(×年2回)

物件価格

5,230万円
※返済金額はあくまでも目安です。

電話をかける(携帯・PHS可)
046-294-0866
「ホームページを見た」とお伝え下さい。

お問い合わせ番号をお伝えください
RHS-980945780

内見予約
お問合せ

お問い合わせ

お問い合わせ内容
お問合せ内容必須
【備考欄】
詳細な見学ご希望時間、ご質問、ご希望条件などがございましたらお聞かせ下さい。
(2000文字以内)
お客様情報
お名前必須
連絡先必須 メールアドレス

※ご記入いただいたメールアドレス宛てに、お問合せ内容の確認メールをお送りいたします。
※Yahoo!メールなどのフリーメールをご利用の場合、迷惑メールフォルダに入る場合があります。
 迷惑メールのフォルダ・設定等をご確認下さい。
電話番号
FAX(任意)
※ご入力いただいたお客さまの個人情報は、「個人情報の取扱いについて」に基づき適正に取り扱います。必ずお読みになり、同意の上お問い合わせください。

お気軽にお問い合わせください

046-294-0866
物件番号 RHS-980945780
※「ホームページを見た」
とお伝え下さい。

お問い合わせ

人生最大のお買いものである住宅購入には、様々なお悩みや不安がつきものです
どんな些細なことでも構いませんので、まずはME不動産神奈川にお気軽にご相談ください。

© ME不動産神奈川 All rights reserved.