高座郡寒川町一之宮2丁目6期 新築戸建 全3棟 神奈川県高座郡寒川町一之宮2丁目|3,780万円の新築一戸建て|分譲住宅や新築物件|ME不動産神奈川

定休日:水曜日 営業時間 9:00〜18:30

046-294-0866

会員登録
TOPページ >
物件検索 >
新築一戸建て
>
高座郡寒川町
>
JR相模線
>
高座郡寒川町一之宮2丁目6期 新築戸建 全3棟

新築一戸建て

高座郡寒川町一之宮2丁目6期 新築戸建 全3棟
お気に入り
価格 3,780万円 ローンシミュレーション
所在地 神奈川県高座郡寒川町一之宮2丁目
この地域周辺の物件を見る
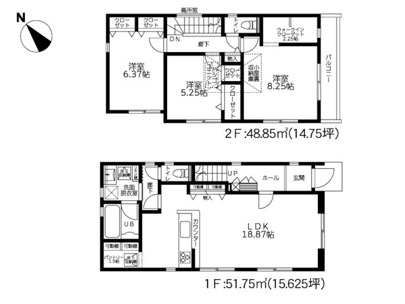
土地面積 109.84m² (33.23坪) 建物面積 100.6u
築年月 2026年6月築 間取り 3LDK (-)
交通
JR相模線 寒川 徒歩9分
JR相模線 宮山 徒歩25分
ここがおすすめ

-


  • 現地外観写真 外観■暮らしを彩る充実した設備仕様が備わった住まい
  •  間取り
  • 現地外観写真 外観■家族みんなが笑顔で過ごせる、安心感のある住まい
  • 現地外観写真 外観■新しい時代の息吹を感じる、心地よい環境
  •  区画図
  • 周辺環境 駅 700m JR相模線「寒川」駅
  • 周辺環境 小学校 260m 寒川町立一之宮小学校
  • 周辺環境 中学校 400m 寒川町立寒川中学校
  • 周辺環境 幼稚園・保育園 750m 一之宮相和幼稚園
  • 周辺環境 病院 300m 木島医院
  • 周辺環境 スーパー 800m FUJI寒川店
お問い合わせ、資料請求、見学のお申し込みはこちらから

電話をかける(携帯・PHS可)
046-294-0866
「ホームページを見た」とお伝え下さい。

お問い合わせ番号をお伝えください
RHS-980942740

内見予約
お問合せ

セールスポイント

特徴
  • フローリング
  • システムキッチン
  • カウンターキッチン
  • シャンプードレッサー
  • 浴室乾燥機
  • Wクローゼット
  • 床下収納
  • バルコニー
  • TVドアホン
  • 都市ガス
  • カースペース2台以上
セールスコメント
 


物件概要

採光面 - 構造/階数 木造/地上2階建
建ぺい率 60(%) 容積率 200(%)
駐車場 現況/引渡し -/2026年6月下旬
土地権利 所有権 私道負担面積 -

接道状況 接道: 東南 公道 道路幅: 4m 用途地域
第一種住居地域
セットバック あり 法令上の制限 準防火地域 12m第1種高度地区 宅地造成および特定盛土等規制法 洪水ハザード浸水深:0.5m-3.0mに該当 SB部分はそれぞれ持分を所有頂きます。
地目 宅地 地勢
建築確認番号 第25UDI1K建01801号 都市計画 市街化区域
取引態様 仲介
情報更新日 2026年04月17日 次回更新日 2026年05月01日
※各種情報と差異がある場合は現況優先となります

学区情報

小学校区 寒川町立一之宮小学校
(神奈川県高座郡寒川町)
この学区の他の物件を見る
中学校区 寒川中学校
(神奈川県高座郡寒川町)
この学区の他の物件を見る
※物件情報の学区情報について
当サイト物件情報に記載されております通学区域(学区)情報は、国土数値情報ダウンロードサービスが提供する小学校区データ【2016年度】及び中学校区データ【2016年度】を元に加工したものですので、記載情報が現在の学区域と異なる場合がございます。
国土数値情報ダウンロードサービスのWEBサイト上で記述通り、データは必ずしも正確とは言えません。また、通学区域(学区)は毎年見直しの対象となりますので、そちらを踏まえ学区情報は参考としてご活用下さい。
お問い合わせ、資料請求、見学のお申し込みはこちらから

電話をかける(携帯・PHS可)
046-294-0866
「ホームページを見た」とお伝え下さい。

お問い合わせ番号をお伝えください
RHS-980942740

内見予約
お問合せ

この物件でローンシミュレーションする

価格 万円
年利率
ボーナス払い 返済年数
頭金 直接入力する 万円

毎月のご返済額

ボーナス(×年2回)

物件価格

3,780万円
※返済金額はあくまでも目安です。

こちらの物件は複数区画の分譲地・他にも販売中のマンションがあります。

高座郡寒川町一之宮2丁目
3480万円〜3780万円
  • こちらの物件を見たお客様はこんな物件もチェックしています。
  • お気に入り物件

電話をかける(携帯・PHS可)
046-294-0866
「ホームページを見た」とお伝え下さい。

お問い合わせ番号をお伝えください
RHS-980942740

内見予約
お問合せ

お問い合わせ

お問い合わせ内容
お問合せ内容必須
【備考欄】
詳細な見学ご希望時間、ご質問、ご希望条件などがございましたらお聞かせ下さい。
(2000文字以内)
お客様情報
お名前必須
連絡先必須 メールアドレス

※ご記入いただいたメールアドレス宛てに、お問合せ内容の確認メールをお送りいたします。
※Yahoo!メールなどのフリーメールをご利用の場合、迷惑メールフォルダに入る場合があります。
 迷惑メールのフォルダ・設定等をご確認下さい。
電話番号
FAX(任意)
※ご入力いただいたお客さまの個人情報は、「個人情報の取扱いについて」に基づき適正に取り扱います。必ずお読みになり、同意の上お問い合わせください。

お気軽にお問い合わせください

046-294-0866
物件番号 RHS-980942740
※「ホームページを見た」
とお伝え下さい。

お問い合わせ

人生最大のお買いものである住宅購入には、様々なお悩みや不安がつきものです
どんな些細なことでも構いませんので、まずはME不動産神奈川にお気軽にご相談ください。

© ME不動産神奈川 All rights reserved.