調布市柴崎2丁目 新築戸建 全3棟 東京都調布市柴崎2丁目|6,880万円の新築一戸建て|分譲住宅や新築物件|ME不動産神奈川

定休日:水曜日 営業時間 9:00〜18:30

046-294-0866

会員登録
TOPページ >
物件検索 >
新築一戸建て
>
調布市
>
京王線
>
調布市柴崎2丁目 新築戸建 全3棟

新築一戸建て

調布市柴崎2丁目 新築戸建 全3棟
お気に入り
価格 6,880万円値下がり ローンシミュレーション
所在地 東京都調布市柴崎2丁目
この地域周辺の物件を見る
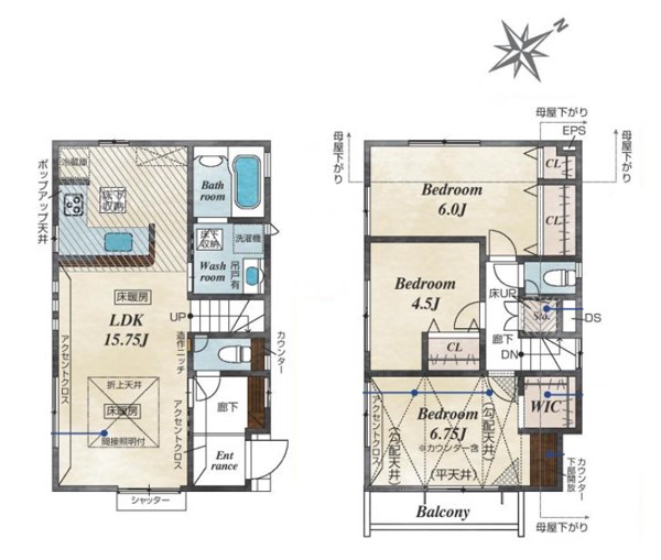
土地面積 99.21m² (30.01坪) 建物面積 78.96u
築年月 2026年1月築 間取り 3LDK (-)
交通
京王線 柴崎 徒歩18分
ここがおすすめ

-


  • 現地外観写真 外観■暮らしを豊かにする充実した仕様設備で快適に
  •  間取り
  • 現地外観写真 外観■新しい暮らしが始まる場所で、家族の絆を深める
  • 現地外観写真 外観■新しい住まい、街の新しい風景
  • 現地外観写真 外観■暮らしを豊かにする充実した仕様設備で快適に
  •  外観■カースペース有
  • 玄関 外観■ 帰るたびにホッとする、安心感のある佇まい
  • その他 外観
  •  区画図
  • 玄関 内装■ ここから始まる一日、すっきり整った玄関
  • トイレ 内装■毎日使う場所だからこそ、清潔感溢れる空間
  • 洗面台・洗面所 内装■朝の準備がスムーズにできる広さです
  • 浴室 内装■家族みんなが気持ちよく使える設計です
  • キッチン 内装■シンプルで機能的、毎日使いやすいキッチン
  • キッチン 内装■キレイに片付く、使いやすいキッチン
  • キッチン 内装■家族の絆を深める、温もりのあるキッチン
  • リビング 内装■心落ち着く場所、ゆったり過ごせるリビング
  • リビング 内装■シンプルだけど贅沢、大切な人と過ごす心がほどける空間
  • その他内観 内装■ふとした瞬間に幸せを感じる、心地よい場所
  • リビング 内装■光と風を感じる、リラックスできる空間
  • その他内観 内装■優雅で穏やかな時間が流れる空間
  • その他内観 内装■落ち着いた色合いのお部屋で穏やかな時間を楽しめます
  • 寝室 内装■快適な環境で、日常の疲れを癒せる空間
  • 子供部屋 内装■仕事や勉強のスペースに使うことで、集中しやすく静かな環境が整います
  • バルコニー 内装■ 季節の移ろいを感じられる開放的な空間です
  • 収納 内装
  • その他内観 設備■一度に多くの料理ができ便利で効率的
  • その他内観 設備■家族の入浴時間がバラバラでも、いつでも温かいお風呂に入れます。
  • その他内観 設備■調理時の蒸気や匂いが換気扇に誘導され、効率的に排煙ができます。
  • その他内観 設備■訪問者を確認できて安心感が増します
お問い合わせ、資料請求、見学のお申し込みはこちらから

電話をかける(携帯・PHS可)
046-294-0866
「ホームページを見た」とお伝え下さい。

お問い合わせ番号をお伝えください
RHS-980939441

内見予約
お問合せ

セールスポイント

特徴
  • フローリング
  • 床暖房
  • システムキッチン
  • 浴室乾燥機
  • Wクローゼット
  • 床下収納
  • バルコニー
  • TVドアホン
  • 都市ガス
  • プライスダウン
セールスコメント
 


物件概要

採光面 - 構造/階数 木造/地上2階建
建ぺい率 40(%) 容積率 80(%)
駐車場 現況/引渡し 空家/即時
土地権利 所有権 私道負担面積 -

接道状況 接道: 東南 公道 道路幅: 5.5m 用途地域
第一種低層住居専用地域
セットバック なし 法令上の制限 第一種高度地区 22条区域 景観法 宅地造成等規制法 公有地拡大推進法 文化財保護法 土地面積協定部分0.18平米含 敷地内都市計画道路(計画決定)3・4・14号線16m有
地目 宅地 地勢
建築確認番号 第R07SHC115255号 都市計画 市街化区域
取引態様 仲介
情報更新日 2026年04月15日 次回更新日 2026年04月29日
※各種情報と差異がある場合は現況優先となります

学区情報

小学校区 調布市立上ノ原小学校
(東京都調布市)
この学区の他の物件を見る
中学校区 神代中学校
(東京都調布市)
この学区の他の物件を見る
※物件情報の学区情報について
当サイト物件情報に記載されております通学区域(学区)情報は、国土数値情報ダウンロードサービスが提供する小学校区データ【2016年度】及び中学校区データ【2016年度】を元に加工したものですので、記載情報が現在の学区域と異なる場合がございます。
国土数値情報ダウンロードサービスのWEBサイト上で記述通り、データは必ずしも正確とは言えません。また、通学区域(学区)は毎年見直しの対象となりますので、そちらを踏まえ学区情報は参考としてご活用下さい。
お問い合わせ、資料請求、見学のお申し込みはこちらから

電話をかける(携帯・PHS可)
046-294-0866
「ホームページを見た」とお伝え下さい。

お問い合わせ番号をお伝えください
RHS-980939441

内見予約
お問合せ

この物件でローンシミュレーションする

価格 万円
年利率
ボーナス払い 返済年数
頭金 直接入力する 万円

毎月のご返済額

ボーナス(×年2回)

物件価格

6,880万円
※返済金額はあくまでも目安です。

こちらの物件は複数区画の分譲地・他にも販売中のマンションがあります。

調布市柴崎2丁目
6780万円〜6880万円

電話をかける(携帯・PHS可)
046-294-0866
「ホームページを見た」とお伝え下さい。

お問い合わせ番号をお伝えください
RHS-980939441

内見予約
お問合せ

お問い合わせ

お問い合わせ内容
お問合せ内容必須
【備考欄】
詳細な見学ご希望時間、ご質問、ご希望条件などがございましたらお聞かせ下さい。
(2000文字以内)
お客様情報
お名前必須
連絡先必須 メールアドレス

※ご記入いただいたメールアドレス宛てに、お問合せ内容の確認メールをお送りいたします。
※Yahoo!メールなどのフリーメールをご利用の場合、迷惑メールフォルダに入る場合があります。
 迷惑メールのフォルダ・設定等をご確認下さい。
電話番号
FAX(任意)
※ご入力いただいたお客さまの個人情報は、「個人情報の取扱いについて」に基づき適正に取り扱います。必ずお読みになり、同意の上お問い合わせください。

お気軽にお問い合わせください

046-294-0866
物件番号 RHS-980939441
※「ホームページを見た」
とお伝え下さい。

お問い合わせ

人生最大のお買いものである住宅購入には、様々なお悩みや不安がつきものです
どんな些細なことでも構いませんので、まずはME不動産神奈川にお気軽にご相談ください。

© ME不動産神奈川 All rights reserved.