平塚市南金目第18−2期 新築戸建 全7棟 神奈川県平塚市南金目 |2,380万円の新築一戸建て|分譲住宅や新築物件|ME不動産神奈川

定休日:水曜日 営業時間 9:00〜18:30

046-294-0866

会員登録
TOPページ >
物件検索 >
新築一戸建て
>
平塚市
>
小田急小田原線
>
平塚市南金目第18−2期 新築戸建 全7棟

新築一戸建て

平塚市南金目第18−2期 新築戸建 全7棟
お気に入り
価格 2,380万円値下がり ローンシミュレーション
所在地 神奈川県平塚市南金目
この地域周辺の物件を見る
土地面積 160.01m² (48.4坪) 建物面積 94.76u
築年月 2026年3月築 間取り 4LDK (-)
交通
小田急小田原線 東海大学前 徒歩39分
小田急小田原線 東海大学前 南金目 バス15分 停歩3分
ここがおすすめ

-


  • 現地外観写真 外観■新しい暮らしが始まる場所で、家族の絆を深める
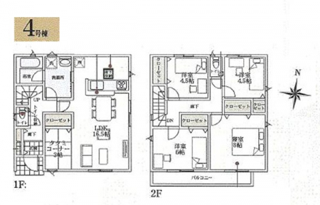
  •  間取り
  • 現地外観写真 外観■まずは一度ご覧ください
  • 現地外観写真 外観■優雅なラインが、毎日を引き立てます
  • 現地外観写真 外観■新しい暮らしが始まる場所で、家族の絆を深める
  •  外観■自宅にある駐車スペースなので安心ですね
  • 玄関 外観■ 家族とゲストをやさしく迎える、心温まる玄関
  •  区画図
  • 玄関 内装■ シンプルで美しく、快適な暮らしの入り口
  • トイレ 内装■毎日使う場所だからこそ、清潔感溢れる空間
  • 洗面台・洗面所 内装■明るい洗面所は毎朝の歯磨きも楽しくできちゃいそうです♪
  • 浴室 内装■落ち着いた色合いの壁面、ゆっくり寛げるバスルーム
  • キッチン 内装■シンプルで美しく心地よい時間を生むキッチン空間
  • キッチン 内装■おしゃれで実用的、心ときめくキッチンデザイン
  • キッチン 内装■シンプルで機能的、毎日使いやすいキッチン
  • リビング 内装■自然と会話が生まれる、心地よいひととき
  • リビング 内装■お気に入りの場所で、のんびりとした時間を
  • その他内観 内装■家族の笑顔があふれる、くつろぎの空間
  • リビング 内装■家族の時間を彩る、快適で癒される空間
  • その他内観 内装■静かな洋室で読書や趣味に集中できる場所
  • 子供部屋 内装■プライベート空間として静かで落ち着いた環境を提供してくれます
  • 寝室 内装■穏やかな空間で自分の時間を大切に
  • その他内観 内装■清潔感あふれるお部屋で毎日を快適に過ごせます
  • バルコニー 内装■ 心地よい風と光を感じる、くつろぎのバルコニー
  • その他内観 内装■落ち着いた色合いのお部屋で穏やかな時間を楽しめます
  • その他内観 内装■機能的で使いやすいお部屋で毎日を快適に
  • その他内観 設備■温水洗浄で快適、清潔感が保たれるシャワートイレ
  • その他内観 設備■手元で簡単に止水できるため、水の無駄遣いを減らすことができます。
  • その他内観 設備■調理時の蒸気や匂いが換気扇に誘導され、効率的に排煙ができます。
  • その他内観 設備■清潔でおいしい水を手軽に供給してくれます
お問い合わせ、資料請求、見学のお申し込みはこちらから

電話をかける(携帯・PHS可)
046-294-0866
「ホームページを見た」とお伝え下さい。

お問い合わせ番号をお伝えください
RHS-980934954

内見予約
お問合せ

セールスポイント

特徴
  • フローリング
  • システムキッチン
  • カウンターキッチン
  • シャンプードレッサー
  • バス・トイレ別
  • シャワートイレ
  • 浴室乾燥機
  • 床下収納
  • バルコニー
  • TVドアホン
  • プライスダウン
セールスコメント
 


物件概要

採光面 - 構造/階数 木造/地上2階建
建ぺい率 60(%) 容積率 200(%)
駐車場 現況/引渡し 空家/即時
土地権利 所有権 私道負担面積 -

接道状況 接道: 南 私道 道路幅: 5m 用途地域
第一種住居地域
セットバック なし 法令上の制限 第一種高度地区 敷地面積110平米
地目 宅地 地勢
建築確認番号 第R07SHC1120341号 都市計画 市街化区域
取引態様 仲介
情報更新日 2026年04月14日 次回更新日 2026年04月28日
※各種情報と差異がある場合は現況優先となります

学区情報

小学校区 平塚市立金目小学校
(神奈川県平塚市)
この学区の他の物件を見る
中学校区 金目中学校
(神奈川県平塚市)
この学区の他の物件を見る
※物件情報の学区情報について
当サイト物件情報に記載されております通学区域(学区)情報は、国土数値情報ダウンロードサービスが提供する小学校区データ【2016年度】及び中学校区データ【2016年度】を元に加工したものですので、記載情報が現在の学区域と異なる場合がございます。
国土数値情報ダウンロードサービスのWEBサイト上で記述通り、データは必ずしも正確とは言えません。また、通学区域(学区)は毎年見直しの対象となりますので、そちらを踏まえ学区情報は参考としてご活用下さい。
お問い合わせ、資料請求、見学のお申し込みはこちらから

電話をかける(携帯・PHS可)
046-294-0866
「ホームページを見た」とお伝え下さい。

お問い合わせ番号をお伝えください
RHS-980934954

内見予約
お問合せ

この物件でローンシミュレーションする

価格 万円
年利率
ボーナス払い 返済年数
頭金 直接入力する 万円

毎月のご返済額

ボーナス(×年2回)

物件価格

2,380万円
※返済金額はあくまでも目安です。

こちらの物件は複数区画の分譲地・他にも販売中のマンションがあります。

平塚市南金目
2280万円〜2580万円
  • こちらの物件を見たお客様はこんな物件もチェックしています。
  • お気に入り物件

電話をかける(携帯・PHS可)
046-294-0866
「ホームページを見た」とお伝え下さい。

お問い合わせ番号をお伝えください
RHS-980934954

内見予約
お問合せ

お問い合わせ

お問い合わせ内容
お問合せ内容必須
【備考欄】
詳細な見学ご希望時間、ご質問、ご希望条件などがございましたらお聞かせ下さい。
(2000文字以内)
お客様情報
お名前必須
連絡先必須 メールアドレス

※ご記入いただいたメールアドレス宛てに、お問合せ内容の確認メールをお送りいたします。
※Yahoo!メールなどのフリーメールをご利用の場合、迷惑メールフォルダに入る場合があります。
 迷惑メールのフォルダ・設定等をご確認下さい。
電話番号
FAX(任意)
※ご入力いただいたお客さまの個人情報は、「個人情報の取扱いについて」に基づき適正に取り扱います。必ずお読みになり、同意の上お問い合わせください。

お気軽にお問い合わせください

046-294-0866
物件番号 RHS-980934954
※「ホームページを見た」
とお伝え下さい。

お問い合わせ

人生最大のお買いものである住宅購入には、様々なお悩みや不安がつきものです
どんな些細なことでも構いませんので、まずはME不動産神奈川にお気軽にご相談ください。

© ME不動産神奈川 All rights reserved.