相模原市中央区由野台1丁目1期 新築戸建 全2棟 神奈川県相模原市中央区由野台1丁目|4,399万円の新築一戸建て|分譲住宅や新築物件|ME不動産神奈川

定休日:水曜日 営業時間 9:00〜18:30

046-294-0866

会員登録
TOPページ >
物件検索 >
新築一戸建て
>
相模原市中央区
>
JR横浜線
>
相模原市中央区由野台1丁目1期 新築戸建 全2棟

新築一戸建て

相模原市中央区由野台1丁目1期 新築戸建 全2棟
お気に入り
価格 4,399万円値下がり ローンシミュレーション
所在地 神奈川県相模原市中央区由野台1丁目
この地域周辺の物件を見る
土地面積 89m² (26.92坪) 建物面積 88.86u
築年月 2026年3月築 間取り 3LDK (-)
交通
JR横浜線 淵野辺 徒歩14分
JR横浜線 矢部 徒歩25分
ここがおすすめ

-


  • 現地外観写真 外観■家族みんなが笑顔で過ごせる、安心感のある住まい
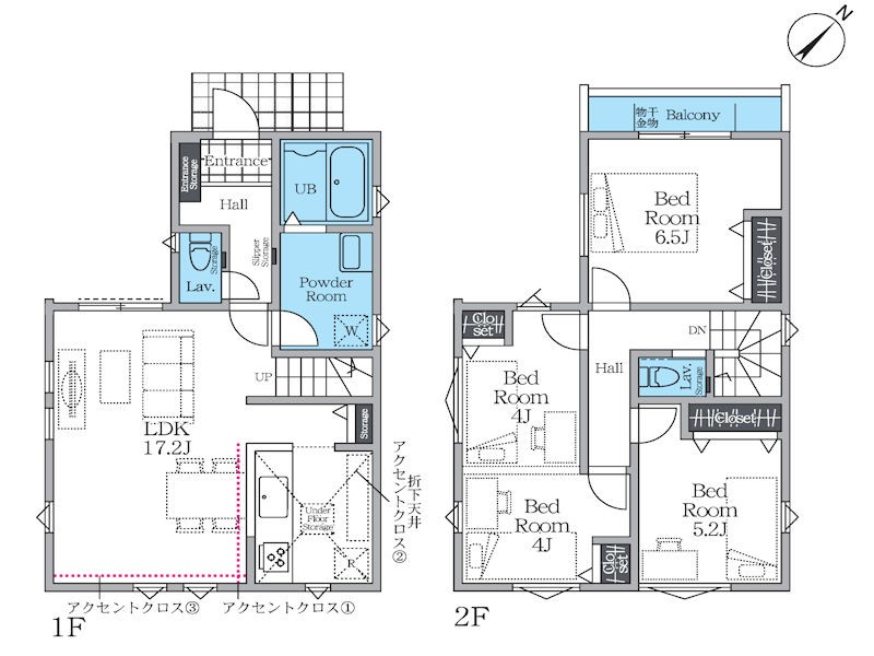
  •  間取り
  • 現地外観写真 外観■暮らしを豊かにする充実した仕様設備で快適に
  • 現地外観写真 外観■この道を歩けば、毎日が少し特別になる
  • 現地外観写真 外観■家族みんなが笑顔で過ごせる、安心感のある住まい
  • 現地外観写真 外観■家族みんなが笑顔で過ごせる、安心感のある住まい
  •  外観■毎日の駐車が快適に
  • 玄関 外観■ ここから始まる、笑顔あふれる毎日
  •  区画図
  • 玄関 内装■玄関はお家の顔!おしゃれな玄関でお客様をお迎え!
  • トイレ 内装■使いやすさと清潔感にこだわった空間
  • 洗面台・洗面所 内装■お洒落で清潔感のある洗面所
  • 浴室 内装■リラックスできる、穏やかな雰囲気です
  • キッチン 内装■美味しい時間が生まれる、笑顔あふれるキッチン
  • キッチン 内装■美味しさの魔法がかかる、特別なキッチン
  • キッチン 内装■アイデア広がる、クリエイティブな料理空間
  • リビング 内装■光と風を感じる、リラックスできる空間
  • リビング 内装■日常をちょっと特別にする、憩いの空間
  • その他内観 内装■自然と心がほどける、リラックスできる場所
  • リビング 内装■くつろぎと笑顔が集まる、心温まるリビング
  • その他内観 内装■自分だけのスペース どんなお部屋にするかとっても楽しみですね
  • 子供部屋 内装■自分の好みに合わせたインテリアを整えやすく個性を反映できる場所です
  • 寝室 内装■シンプルな空間で、収納付きベッドやデスクなど、多機能な家具を活用しやすいです
  • その他内観 内装■シンプルで使いやすい空間がスッキリ感じられます
  • バルコニー 内装■ 空を眺めながら、ほっと一息つける特別な空間
  • その他内観 内装■静かな洋室で読書や趣味に集中できる場所
  • 寝室 内装■穏やかな空間で自分の時間を大切に
  • その他内観 設備■フードに覆われている為、匂いが換気扇に誘導され、効率的に排煙ができます
  • その他内観 設備■便座の温かさと洗浄機能で快適に
  • その他内観 設備■細かい部分まで洗いやすく便利なハンドシャワー付き
お問い合わせ、資料請求、見学のお申し込みはこちらから

電話をかける(携帯・PHS可)
046-294-0866
「ホームページを見た」とお伝え下さい。

お問い合わせ番号をお伝えください
RHS-980931565

内見予約
お問合せ

セールスポイント

特徴
  • フローリング
  • システムキッチン
  • シャンプードレッサー
  • シャワートイレ
  • 浴室乾燥機
  • 床下収納
  • バルコニー
  • TVドアホン
  • 都市ガス
  • プライスダウン
セールスコメント
 


物件概要

採光面 - 構造/階数 木造/地上2階建
建ぺい率 50(%) 容積率 100(%)
駐車場 現況/引渡し 空家/即時
土地権利 所有権 私道負担面積 -

接道状況 接道: 北西 公道 道路幅: 6m 用途地域
第一種低層住居専用地域
セットバック なし 法令上の制限 下水道処理区域 日影規制3-2h1.5m
地目 宅地 地勢
建築確認番号 第25UDI1W建07859号 都市計画 市街化区域
取引態様 仲介
情報更新日 2026年04月17日 次回更新日 2026年05月01日
※各種情報と差異がある場合は現況優先となります

学区情報

小学校区 相模原市立共和小学校
(神奈川県相模原市中央区)
この学区の他の物件を見る
中学校区 由野台中学校
(神奈川県相模原市中央区)
この学区の他の物件を見る
※物件情報の学区情報について
当サイト物件情報に記載されております通学区域(学区)情報は、国土数値情報ダウンロードサービスが提供する小学校区データ【2016年度】及び中学校区データ【2016年度】を元に加工したものですので、記載情報が現在の学区域と異なる場合がございます。
国土数値情報ダウンロードサービスのWEBサイト上で記述通り、データは必ずしも正確とは言えません。また、通学区域(学区)は毎年見直しの対象となりますので、そちらを踏まえ学区情報は参考としてご活用下さい。
お問い合わせ、資料請求、見学のお申し込みはこちらから

電話をかける(携帯・PHS可)
046-294-0866
「ホームページを見た」とお伝え下さい。

お問い合わせ番号をお伝えください
RHS-980931565

内見予約
お問合せ

この物件でローンシミュレーションする

価格 万円
年利率
ボーナス払い 返済年数
頭金 直接入力する 万円

毎月のご返済額

ボーナス(×年2回)

物件価格

4,399万円
※返済金額はあくまでも目安です。

こちらの物件は複数区画の分譲地・他にも販売中のマンションがあります。

相模原市中央区由野台1丁目
4399万円〜4799万円

電話をかける(携帯・PHS可)
046-294-0866
「ホームページを見た」とお伝え下さい。

お問い合わせ番号をお伝えください
RHS-980931565

内見予約
お問合せ

お問い合わせ

お問い合わせ内容
お問合せ内容必須
【備考欄】
詳細な見学ご希望時間、ご質問、ご希望条件などがございましたらお聞かせ下さい。
(2000文字以内)
お客様情報
お名前必須
連絡先必須 メールアドレス

※ご記入いただいたメールアドレス宛てに、お問合せ内容の確認メールをお送りいたします。
※Yahoo!メールなどのフリーメールをご利用の場合、迷惑メールフォルダに入る場合があります。
 迷惑メールのフォルダ・設定等をご確認下さい。
電話番号
FAX(任意)
※ご入力いただいたお客さまの個人情報は、「個人情報の取扱いについて」に基づき適正に取り扱います。必ずお読みになり、同意の上お問い合わせください。

お気軽にお問い合わせください

046-294-0866
物件番号 RHS-980931565
※「ホームページを見た」
とお伝え下さい。

お問い合わせ

人生最大のお買いものである住宅購入には、様々なお悩みや不安がつきものです
どんな些細なことでも構いませんので、まずはME不動産神奈川にお気軽にご相談ください。

© ME不動産神奈川 All rights reserved.