立川市上砂町3丁目第2期 新築戸建 全2棟 東京都立川市上砂町3丁目|4,180万円の新築一戸建て|分譲住宅や新築物件|ME不動産神奈川

定休日:水曜日 営業時間 9:00〜18:30

046-294-0866

会員登録
TOPページ >
物件検索 >
新築一戸建て
>
立川市
>
西武拝島線
>
立川市上砂町3丁目第2期 新築戸建 全2棟

新築一戸建て

立川市上砂町3丁目第2期 新築戸建 全2棟
お気に入り
価格 4,180万円値下がり ローンシミュレーション
所在地 東京都立川市上砂町3丁目
この地域周辺の物件を見る
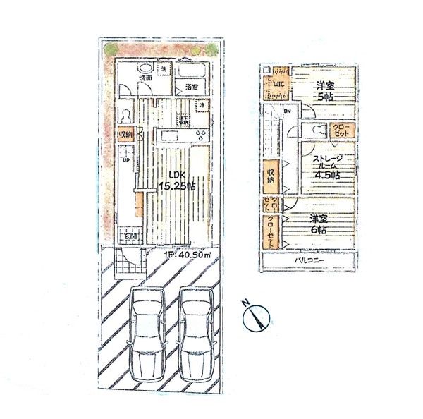
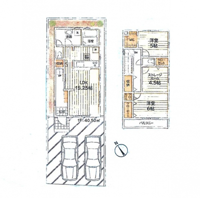
土地面積 102.44m² (30.99坪) 建物面積 81u
築年月 2026年2月築 間取り 2SLDK (-)
交通
西武拝島線 武蔵砂川 徒歩17分
JR中央線 立川 大山団地西 バス15分 停歩7分
ここがおすすめ

-


  • 現地外観写真 3号棟  ■暮らしを豊かにする充実した仕様設備で快適に
  •  3号棟
  • 現地外観写真 3号棟  ■新しい暮らしが始まる場所で、家族の絆を深める
  • 現地外観写真 外観■新しい住まい、街の新しい風景
  • 現地外観写真 3号棟  ■暮らしを豊かにする充実した仕様設備で快適に
  •  3号棟  ■カースペース有
  • 玄関 3号棟  ■ 帰るたびにホッとする、安心感のある佇まい
  •  区画図
  • 玄関 3号棟  ■ ここから始まる一日、すっきり整った玄関
  • トイレ 3号棟  ■毎日使う場所だからこそ、清潔感溢れる空間
  • 洗面台・洗面所 3号棟  ■朝の準備がスムーズにできる広さです
  • 浴室 3号棟  ■家族みんなが気持ちよく使える設計です
  • キッチン 3号棟  ■シンプルで機能的、毎日使いやすいキッチン
  • キッチン 3号棟  ■キレイに片付く、使いやすいキッチン
  • キッチン 3号棟  ■家族の絆を深める、温もりのあるキッチン
  • リビング 3号棟  ■心落ち着く場所、ゆったり過ごせるリビング
  • リビング 3号棟  ■シンプルだけど贅沢、大切な人と過ごす心がほどける空間
  • その他内観 3号棟  ■ふとした瞬間に幸せを感じる、心地よい場所
  • リビング 3号棟  ■光と風を感じる、リラックスできる空間
  • その他内観 3号棟  ■優雅で穏やかな時間が流れる空間
  • 子供部屋 3号棟  ■仕事や勉強のスペースに使うことで、集中しやすく静かな環境が整います
  • 寝室 3号棟  ■快適な環境で、日常の疲れを癒せる空間
  • その他内観 3号棟  ■落ち着いた色合いのお部屋で穏やかな時間を楽しめます
  • バルコニー 3号棟  ■ 季節の移ろいを感じられる開放的な空間です
  • 収納 3号棟  ■季節の洋服も、思い出の小物もすっきり収納できるウォークインクローゼット付
  • その他内観 設備■鍵を取り出さずに便利に操作できて快適
  • その他内観 設備■手洗いや顔を洗う時も快適に使える便利なシャワー
  • その他内観 設備■一度に多くの料理ができ便利で効率的
  • その他内観 設備■温水洗浄で快適、清潔感が保たれるシャワートイレ
  • その他内観 設備■訪問者を確認できて安心感が増します
お問い合わせ、資料請求、見学のお申し込みはこちらから

電話をかける(携帯・PHS可)
046-294-0866
「ホームページを見た」とお伝え下さい。

お問い合わせ番号をお伝えください
RHS-980926641

内見予約
お問合せ

セールスポイント

特徴
  • システムキッチン
  • シャンプードレッサー
  • シャワートイレ
  • 浴室乾燥機
  • Wクローゼット
  • 床下収納
  • TVドアホン
  • 都市ガス
  • カースペース2台以上
  • プライスダウン
セールスコメント
 


物件概要

採光面 - 構造/階数 木造/地上2階建
建ぺい率 40(%) 容積率 80(%)
駐車場 現況/引渡し 空家/即時
土地権利 所有権 私道負担面積 -

接道状況 接道: 南 公道 道路幅: 3.8m 用途地域
第一種低層住居専用地域
セットバック なし 法令上の制限 -
地目 宅地 地勢
建築確認番号 第25UDI1W建03461号 都市計画 市街化区域
取引態様 仲介
情報更新日 2026年05月17日 次回更新日 2026年05月31日
※各種情報と差異がある場合は現況優先となります

学区情報

小学校区 立川市立大山小学校
(東京都立川市)
この学区の他の物件を見る
中学校区 立川第五中学校
(東京都立川市)
この学区の他の物件を見る
※物件情報の学区情報について
当サイト物件情報に記載されております通学区域(学区)情報は、国土数値情報ダウンロードサービスが提供する小学校区データ【2016年度】及び中学校区データ【2016年度】を元に加工したものですので、記載情報が現在の学区域と異なる場合がございます。
国土数値情報ダウンロードサービスのWEBサイト上で記述通り、データは必ずしも正確とは言えません。また、通学区域(学区)は毎年見直しの対象となりますので、そちらを踏まえ学区情報は参考としてご活用下さい。
お問い合わせ、資料請求、見学のお申し込みはこちらから

電話をかける(携帯・PHS可)
046-294-0866
「ホームページを見た」とお伝え下さい。

お問い合わせ番号をお伝えください
RHS-980926641

内見予約
お問合せ

この物件でローンシミュレーションする

価格 万円
年利率
ボーナス払い 返済年数
頭金 直接入力する 万円

毎月のご返済額

ボーナス(×年2回)

物件価格

4,180万円
※返済金額はあくまでも目安です。

電話をかける(携帯・PHS可)
046-294-0866
「ホームページを見た」とお伝え下さい。

お問い合わせ番号をお伝えください
RHS-980926641

内見予約
お問合せ

お問い合わせ

お問い合わせ内容
お問合せ内容必須
【備考欄】
詳細な見学ご希望時間、ご質問、ご希望条件などがございましたらお聞かせ下さい。
(2000文字以内)
お客様情報
お名前必須
連絡先必須 メールアドレス

※ご記入いただいたメールアドレス宛てに、お問合せ内容の確認メールをお送りいたします。
※Yahoo!メールなどのフリーメールをご利用の場合、迷惑メールフォルダに入る場合があります。
 迷惑メールのフォルダ・設定等をご確認下さい。
電話番号
FAX(任意)
※ご入力いただいたお客さまの個人情報は、「個人情報の取扱いについて」に基づき適正に取り扱います。必ずお読みになり、同意の上お問い合わせください。

お気軽にお問い合わせください

046-294-0866
物件番号 RHS-980926641
※「ホームページを見た」
とお伝え下さい。

お問い合わせ

人生最大のお買いものである住宅購入には、様々なお悩みや不安がつきものです
どんな些細なことでも構いませんので、まずはME不動産神奈川にお気軽にご相談ください。

© ME不動産神奈川 All rights reserved.