横須賀市森崎6丁目の分譲住宅一覧|神奈川の新築・中古一戸建て、不動産情報ならME不動産神奈川

定休日:水曜日 営業時間 9:00〜18:30

046-294-0866

会員登録
TOPページ >
物件検索 >
分譲住宅特集一覧 >
横須賀市森崎6丁目の分譲住宅特集一覧
2件中1〜2件を表示
  • 1
新築一戸建て
価格 3,180万円 
所在地 横須賀市森崎6丁目
交通 京急久里浜線 北久里浜駅 徒歩23分
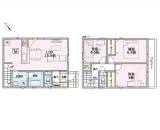
建物面積 77.76m2 土地面積 97.63m2

新築一戸建て
価格 3,280万円 
所在地 横須賀市森崎6丁目
交通 京急久里浜線 北久里浜駅 徒歩23分
建物面積 79.38m2 土地面積 101.49m2

2件中1〜2件を表示
  • 1

お問い合わせ

人生最大のお買いものである住宅購入には、様々なお悩みや不安がつきものです
どんな些細なことでも構いませんので、まずはME不動産神奈川にお気軽にご相談ください。

© ME不動産神奈川 All rights reserved.