八王子市諏訪町 の分譲住宅一覧|神奈川の新築・中古一戸建て、不動産情報ならME不動産神奈川

定休日:水曜日 営業時間 9:00〜18:30

046-294-0866

会員登録
TOPページ >
物件検索 >
分譲住宅特集一覧 >
八王子市諏訪町 の分譲住宅特集一覧
3件中1〜3件を表示
  • 1

新築一戸建て|八王子市諏訪町

新築一戸建て
価格 2,780万円 
所在地 八王子市諏訪町
交通 JR中央線 西八王子駅 バス18分停歩4分
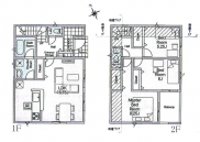
建物面積 93.14m2 土地面積 125.01m2

新築一戸建て
価格 2,850万円 
所在地 八王子市諏訪町
交通 JR中央線 西八王子駅 バス18分停歩4分
建物面積 97.20m2 土地面積 125.01m2

3件中1〜3件を表示
  • 1

お問い合わせ

人生最大のお買いものである住宅購入には、様々なお悩みや不安がつきものです
どんな些細なことでも構いませんので、まずはME不動産神奈川にお気軽にご相談ください。

© ME不動産神奈川 All rights reserved.